Профессиональные навыки
Балыкина Софья
Моделирование
Для создания трехмерных моделей я использую Revit и Rhino. В большинстве текущих работ я использовала Revit, так как он для меня является практически "карандашом и бумагой".

Для сложных форм или оболочек я использую Rhino.
Revit
Rhino
Я считаю, что чертежи концепций и рабочие чертежи должны выглядеть максимально понятно, но при этом и красиво, и аккуратно.
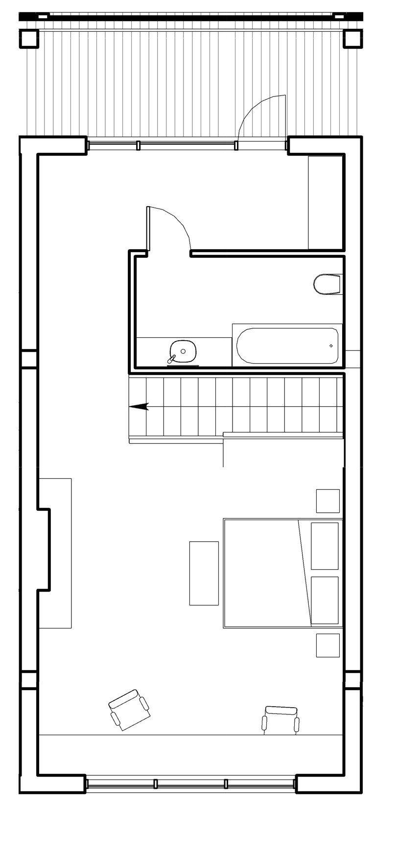
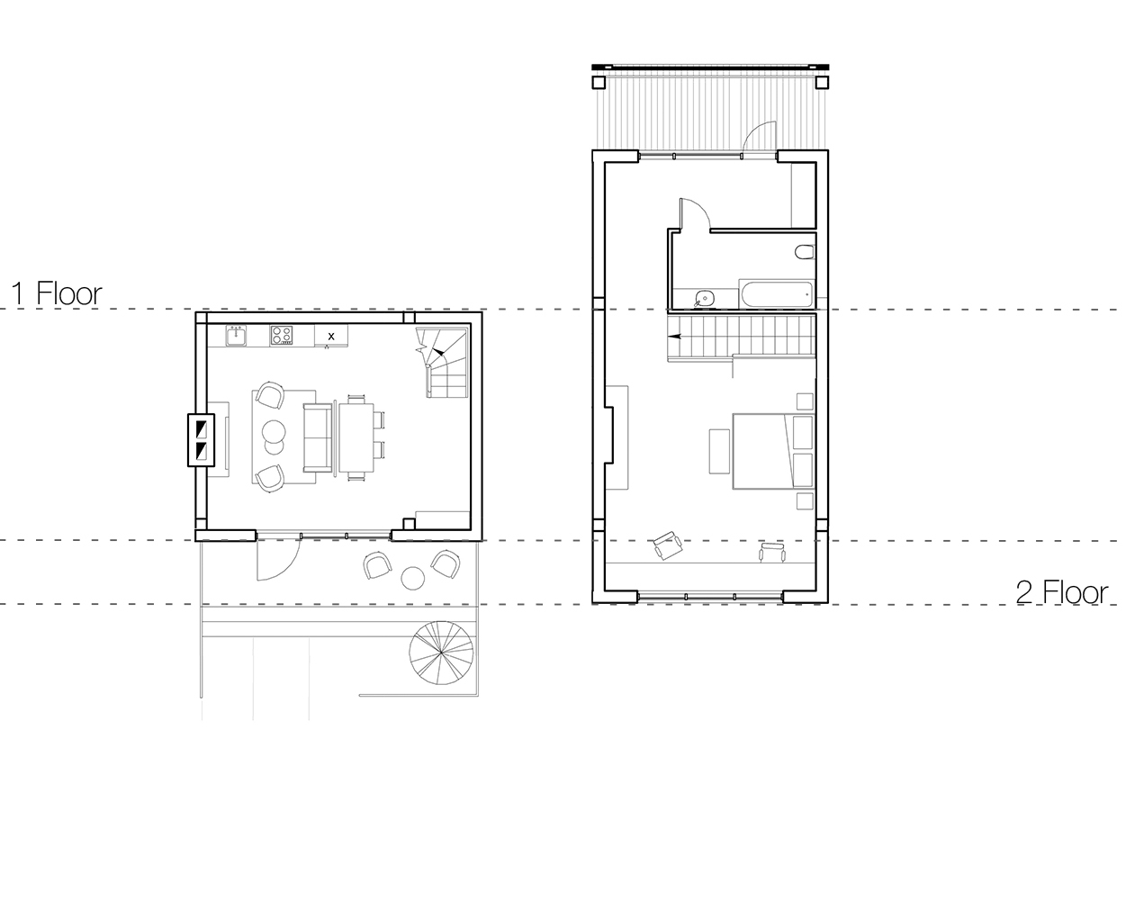
Чертежи
Владение таким видом графики как иллюстрация позволяет быстро собирать концептуальные изображения, отражающие основную идею.
Иллюстрации
Фотореалистичное изображение позволяет передать уже полностью проработанную концепцию.
Визуализации
Для создания макетов часто требуется разложить 3D модель для станков ЧПУ или лазерных станков. Это очень много рутинной раскладки всей модели на плоскость.
Grasshoper
Grasshoper облегчил мне и моей команде создание макета листопрокатного цеха металлургического завода в Выксе. Grasshoper нужен был нам для того, чтобы разложить на плоскость свод из 3D модели и верхние пояса арок.
Анимация способна любой статичной иллюстрации добавить живости и реалистичности.
Анимация
+ 7 995 300 54 61
sofya.balykina@yandex.ru
Контакты
Подпишитесь на новости
Чтобы не пропустить что-нибудь интересное
Нажимая на кнопку, вы даете согласие на обработку персональных данных и
соглашаетесь c политикой конфиденциальности
КОНТАКТЫ
По всем вопросам пишите synthesis.moscow@yandex.ru
или звоните по телефонам
+7 499 390-67-88
+7 925 074-85-00
ИНФОРМАЦИЯ
© 2016-2020 SYNTHESIS