ПОРТФОЛИО
ДОБЫЧИНА СОНЯ
МОДЕЛИ
МОДЕЛИ
В ОСНОВНОМ ДЛЯ 3D МОДЕЛИРОВАНИЯ Я ИСПОЛЬЗУЮ RHINO
ИЗ-ЗА УДОБСТВА СОВМЕЩЕНИЯ ЧЕРЧЕНИЯ И МОДЕЛИРОВАНИЯ
И ДОСТУПНОСТИ ДЕТАЛЬНОЙ ПРОРАБОТКИ МОДЕЛЕЙ
RHINO УДОБЕН ДЛЯ СОВМЕЩЕНИЯ ЧЕРЧЕНИЯ И МОДЕЛИРОВАНИЯ
И ДЕТАЛЬНОЙ ПРОРАБОТКИ МОДЕЛЕЙ
ПРОЕКТ СИНЕСТЕЗИЯ –
ГАЛЕРЕЯ С ТАНДЫРОМ
И ПЕЧАТНОЙ МАСТЕРСКОЙ
ЧЕРТЕЖ ГАЛЕРЕИ ВЫПОЛНЕН С МОДЕЛИ С ПОМОЩЬЮ
ИНСТРУМЕНТА MAKE 2D В RHINO
ЧЕРТЕЖ ГАЛЕРЕИ ВЫПОЛНЕН С МОДЕЛИ С ПОМОЩЬЮ
ИНСТРУМЕНТА MAKE 2D В RHINO
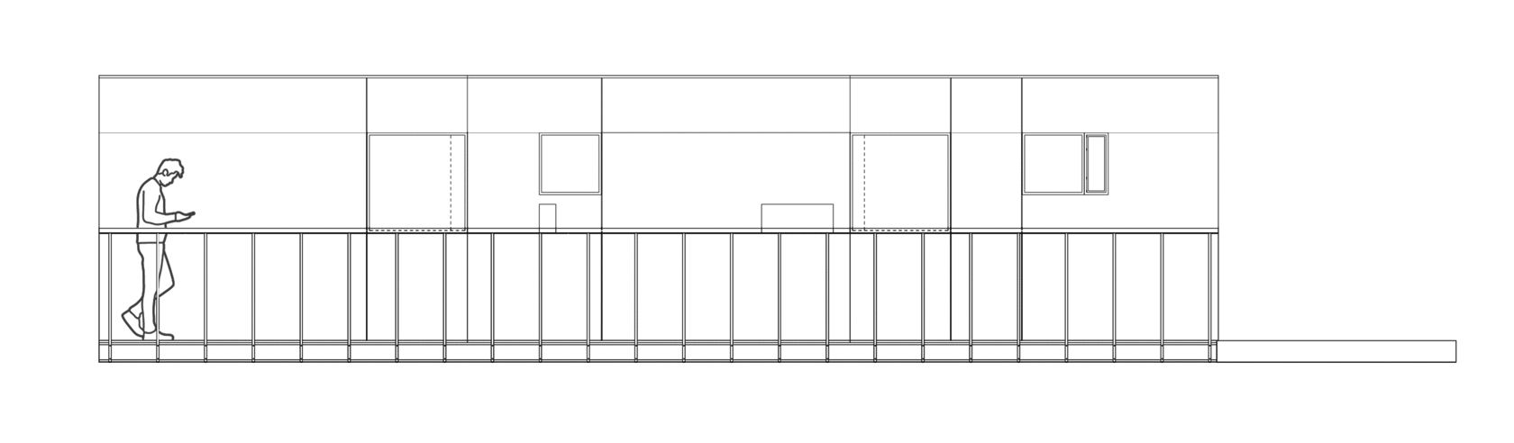
ФРАГМЕНТ ГАЛЕРЕИ
ДЛЯ ПРОЕКТА ЖИЛОГО
КВАРТАЛА НА БАУМАНСКОЙ
ЧЕРТЕЖИ
ЧЕРТЕЖИ
ДЛЯ СОЗДАНИЯ ЧЕРТЕЖЕЙ ИСПОЛЬЗУЮ RHINO, AUTOCAD, ILLUSTRATOR
В ILLUSTRATOR, МНЕ УДОБНО НАСТРАИВАТЬ ГРАФИКУ, ПРИ ЭТОМ RHINO УДОБНЕЕ,
ЕСЛИ НЕОБХОДИМО СВЯЗАТЬ ЧЕРТЕЖ С МОДЕЛЬЮ, А AUTOCAD ДЛЯ ВЫПОЛНЕНИЯ БОЛЬШОГО ОБЪЕМА ВЗАИМОСВЯЗАННЫХ ЧЕРТЕЖЕЙ
ДЛЯ СОЗДАНИЯ ЧЕРТЕЖЕЙ Я ИСПОЛЬЗУЮ RHINO, AUTOCAD И ILLUSTRATOR
ЧЕРТЕЖ ВЫВЕДЕН ИЗ МОДЕЛИ
В RHINO С ПОМОЩЬЮ MAKE2D
(ВСЕ ДЕТАЛИ КОНСТРУКЦИИ
ЗАМОДЕЛЕНЫ). ГРАФИКА
КОРРЕКТИРОВАЛАСЬ В ILLUSTRATOR
РАЗРЕЗ ВЫПОЛНЕН В RHINO ПО БОЛВАНКЕ СНЯТОЙ С МОДЕЛИ
РАЗРЕЗ ВЫПОЛНЕН В RHINO ПО БОЛВАНКЕ СНЯТОЙ С МОДЕЛИ
КЛИК
ПО 4 ФРАГМЕНТАМ
КЛИК
ПО 4 ФРАГМЕНТАМ
РАЗВЕРТКА ПО ПОСЛАННИКОВУ ПЕРЕУЛКУ В РАМКАХ РАБОТЫ НАД ЖИЛЫМ КВАРТАЛОМ. ВЫПОЛНЯЛАСЬ В AUTOCAD ПО ФОТОГРАФИЯМ УЛИЦЫ
РАЗВЕРТКА ПО ПОСЛАННИКОВУ ПЕРЕУЛКУ В РАМКАХ РАБОТЫ НАД ЖИЛЫМ КВАРТАЛОМ. ВЫПОЛНЯЛАСЬ В AUTOCAD ПО ФОТОГРАФИЯМ УЛИЦЫ
RHINO (МОДЕЛЬ+MAKE2D) + PHOTOSHOP
RHINO (МОДЕЛЬ+MAKE2D) + PHOTOSHOP
ПРИМЕР ПЛАНИРОВКИ КВАРТИРЫ
В ПРОЕКТЕ ЖИЛОГО КВАРТАЛА
НА БАУМАНСКОЙ
ИЛЛЮСТРАЦИИ
ИЛЛЮСТРАЦИИ
ДЛЯ ИЛЛЮСТРАЦИЙ И КОЛЛАЖЕЙ Я ИСПОЛЬЗУЮ PHOTOSHOP, LUMION, THEA RENDER
ОБЫЧНО БОЛВАНКУ ДЕЛАЮ В RHINO И НА НЕЕ КЛАДУ ТЕКСТУРЫ В PHOTOSHOP
ДЛЯ ИЛЛЮСТРАЦИЙ И КОЛЛАЖЕЙ Я ИСПОЛЬЗУЮ PHOTOSHOP, LUMION, THEA RENDER

LUMION – КАК МНЕ КАЖЕТСЯ, ПРОСТОЙ И БЫСТРЫЙ ИНСТРУМЕНТ,
ХОТЬ ВОЗМОЖНО И ОТСТАЕТ ОТ BLENDER
LUMION – КАК МНЕ КАЖЕТСЯ, ПРОСТОЙ И БЫСТРЫЙ ИНСТРУМЕНТ,
ХОТЬ ВОЗМОЖНО И ОТСТАЕТ ОТ BLENDER

КОНКУРС НА ПРОЕКТ
ФЭШН ПАВИЛЬОНА
В МИЛАНЕ
*СОВМЕСТНО С Ф. БОЛЬШАКОВЫМ
АНИМАЦИЯ
АНИМАЦИЯ
АНИМАЦИИ В PHOTOSHOP И AFTEREFFECTS
АНИМАЦИИ В PHOTOSHOP И AFTEREFFECTS
Подпишитесь на новости
Чтобы не пропустить что-нибудь интересное
Нажимая на кнопку, вы даете согласие на обработку персональных данных и
соглашаетесь c политикой конфиденциальности
КОНТАКТЫ
По всем вопросам пишите synthesis.moscow@yandex.ru
или звоните по телефонам
+7 499 390-67-88
+7 925 074-85-00
ИНФОРМАЦИЯ
© 2016-2020 SYNTHESIS