Портфолио
Шубенко Ксения
ksshubenko@gmail.com
@koupless
Модели
В профессии архитектора моделирование является одной из главных задач. Есть несколько программ, которые подходят под эти цели. 
Основная программа, в которой я работаю - это Sketchup. Она наиболее удобна для моделирования, так как в ней можно быстро создать модель и представить её масштабы и вид в реальной жизни. В ней можно использовать различные плагины и её интерфейс довольно простой. Также, в скетчапе можно быстро сделать нужный тебе разрез, потратив на это наименьшее количество времени.
Все модели на фото были сделаны в Sketchup
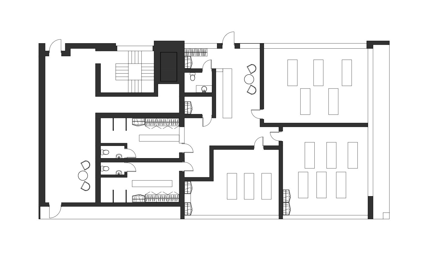
Чертежи 
Чертежи мне удобно делать в автокаде и райно. Тогда они получаются наиболее чистыми, а райно помогает начертить нестандартные формы. 
Разрезы Sketchup
Планы Autocad
Иллюстрации
Благодаря рендеру и фотошопу, мы видим картину более похожую на реальность. Таким образом, мы можем отредактировать цветовую палитру, расположение мебели и много чего другого до момента воплощения проекта в жизнь.
Все иллюстрации были сделаны в программах: Sketchup, Vray, Photoshop
Анимация
Анимацию в направлении архитектуры я использую для оживления пространства. Но, также, мне интересно делать анимации просто для себя. 
На первой картинке мы можем увидеть музыкантов, исполняющих свои произведения, а на второй - людей, танцующих под музыку в абстрактном городе.
Все анимации были сделаны в программах: Photoshop, Aftereffects
Дополнительный навык
Для проектирования сложных форм, а также для последующих технических расчётов, я использую grasshopper и rhino. 
Модели были сделаны в: Grasshopper, Rhino