Модели
3D Модель сегмента покрытия Верхних Торговых Рядов в Москве (Rhinoceros)
Чертежи
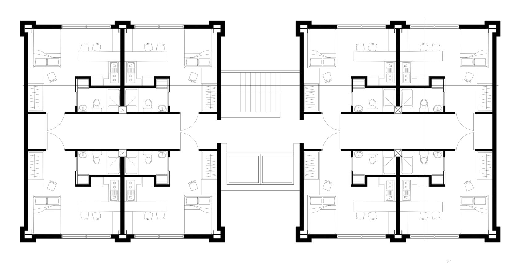
Чертеж резиденции (AutoCAD)
Иллюстрации
3D Модель концертного зала с аквариумом (Rhinoceros + SketchUp + Lumion)
Скульптинг
Свободный скульптинг в Z-Brush и рендер в Keyshot
Left
Right
Модели
SketchUP & Rhinoceros
Чертежи
AutoCAD & Rhinoceros
If a building becomes architecture, then it is art
Иллюстрации
Презентационные материалы выполненные в Photoshop
Наведи мышку
Скульптинг
Z - Brush + KeyShot
Рендеринг
Rhinoceros + Lumion/ SketchUp + VRay
Анимация
в Photoshop и After Effects
Технологии
Алгоритмы Grasshopper
Даниил Орехов. Портфолио
Контакты
bombarabom@gmail.com
+7 926 209 76 24
Telegram